Stan, Prodaja, Zadar-okolica, Petrčane, 64.29m2, 2,5-sobni (2S+DB)
Predstavljamo Vam moderan 2,5-sobni stan ukupne površine 64,29 m2, smješten…
Prodaja, Stan u novogradnji
224.144€
Posredujemo u prodaji prekrasne novogradnje u Povljani na južnom dijelu otoka Paga. Objekt ima neometan pogled na more. Predviđeni rok završetka gradnje i upisa objekta u zemljišne knjige je kraj 2024.
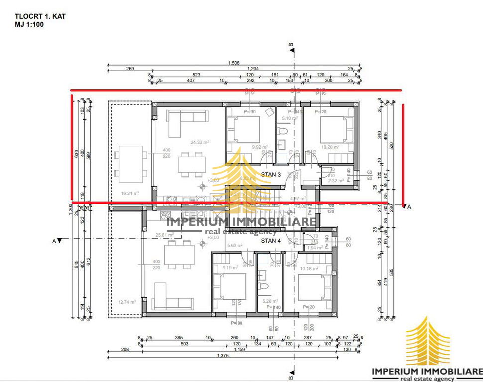
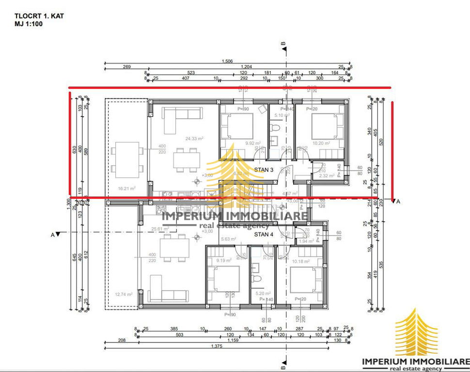
Bruto dimenzije ovog stana S3 su sljdeće:
DNEVNI BORAVAK I KUHINJA 24,33 m2
SOBA 1 9,92 m2
SOBA 2 10,2 m2
KUPAONICA 5,1 m2
HODNIK 6,82 m2
OSTAVA 2,32 m2
TERASA 16,21 m2
Stambeni dio: 70,9 m2
PARKING 13,00 m2
UKUPNO: 87,9 m2
Ukupna neto korisna vrijednost površine je 70,05 m2
U ponudi su još četiri stana (S1, S2, S4-prodan, S5 i S6) u prizemlju, na prvom i drugom katom. Stambeni objekt nalazi se na dobroj lokaciji u mirnom dijelu Povljane, 400m udaljen od mora i pješčane plaže, otvorenog pogleda prema moru, 120m od centra mjesta, blizina svih potrebnih sadržaja za ugodan i miran odmor. Najbliža plaža je pješčana i pogodna je kako za obitelji, a tako i za starije. Objekt ima neometan pogled na more.
Stambeni objekt ima tri etaže – Prizemlje, 1. kat i 2. kat. Dva apartmana po etaži. Svaki apartman se sastoji od prostranog dnevnog boravka s kuhinjom, dvije spavaće sobe, kupaonice, hodnika, ostave, velike natkrivene terase s prekrasnim pogledom na more i okolicu i parkirnog mjesta.
Svakom apartmanu pripada po jedno etažirano parkirno mjesto ispred objekta – svako parkirno mjesto je opremljeno pripremom instalacije za punjenje električnih automobila.
Mnoštvo prirodnog svijetla osiguravaju velike staklene stijene, u dnevnim boravcima staklene stijene 4 m x 2,2 m i orijentacija svakog apartmana na tri strane.
Svaki apartman ima zasebna brojila struje i vode.
Apartmani u prizemlju imaju etažirane privatne vrtove.
Planirano useljenje: 12/2024
Vrhunska novogradnja:
Vlasništvo uredno.
Objekt se može pogledati prema dogovoru.
Upišite bilo koja tri unosa da biste izračunali četvrti. Usluga kreditnog posredovanja je besplatna.
Mjesečni anuitet
–
Ukupna kamata
–
Ukupan iznos za plaćanje
–
Prva rata
–
Ukupna kamata
–
Ukupan iznos za plaćanje
–
Mjesečni anuitet
–
Ukupna kamata
–
Ukupan iznos za plaćanje
–
Prva rata
–
Ukupna kamata
–
Ukupan iznos za plaćanje
–
Mjesečni anuitet
–
Ukupna kamata
–
Ukupan iznos za plaćanje
–
Prva rata
–
Ukupna kamata
–
Ukupan iznos za plaćanje
–
Izvrstan odabir! Pomoći ćemo ti pronaći najpovoljnije kreditno rješenje. Upiši kontakt podatke i zovemo te u roku 24 sata
Besplatno kreditno posredovanje
Predstavljamo Vam moderan 2,5-sobni stan ukupne površine 64,29 m2, smješten…
Predstavljamo vam moderan 2,5-sobni stan ukupne površine 88,88 m2, smješten…
Poljoprivredna površina od 962 m2 smještena u atraktivnoj zoni idealna…
Predstavljamo Vam izvanredan penthouse S4 površine 129,93 m2, smješten na…
New construction: apartment S5, 2nd floor, Povljana, 70.05 m2, Croatia
Koristimo kolačiće kako bismo poboljšali vaše iskustvo na našoj stranici. Korištenjem naše stranice pristajete na kolačiće.
Upravljajte postavkama kolačića u nastavku:
Osnovni kolačići omogućuju osnovne funkcije i neophodni su za pravilno funkcioniranje web stranice.
Google Tag Manager pojednostavljuje upravljanje marketinškim oznakama na vašoj web stranici bez promjena koda.
Statistički kolačići anonimno prikupljaju informacije. Ove informacije nam pomažu da razumijemo kako posjetitelji koriste našu web stranicu.
Google Analytics je moćan alat koji prati i analizira promet na web stranici za donošenje informiranih marketinških odluka.
URL usluge: policies.google.com (opens in a new window)
Više informacija možete pronaći u našim Politika privatnosti i Politika privatnosti.